bed Land For Sale

£575,000Guide Price

High Street, Cambridgeshire, PE29

  • Residential Development Site.
  • Planning permission granted the conversion of a Listed building to 4 apartments & 2 new build mews houses.
  • Potential for a title split.
  • Sited within Huntingdon Town Centre.
  • 20 minute walk to Huntingdon Train Station / Fast lines to London in under 50 minutes.
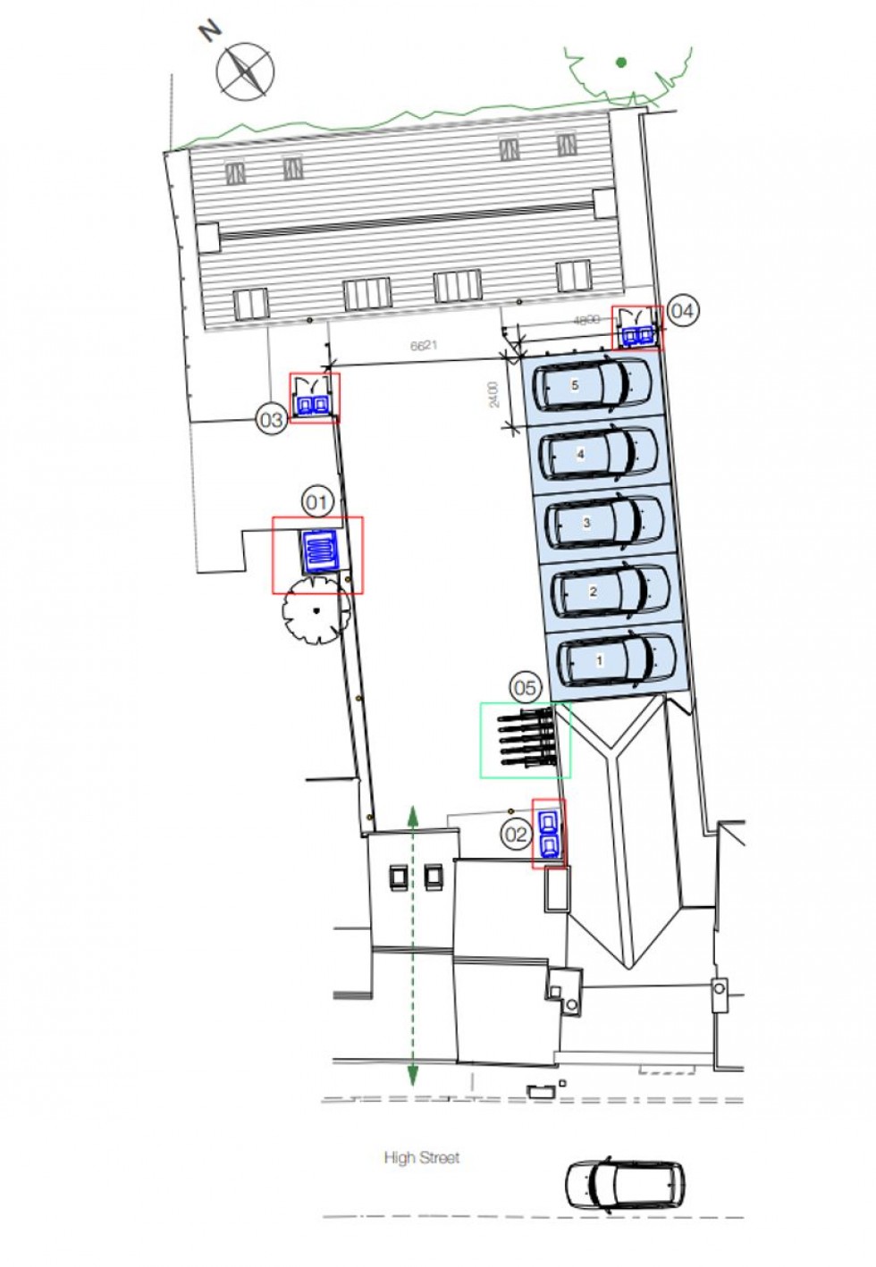
  • Five off road car parking spaces.
  • Offered with no chain and vacant possession.
  • Quick access onto the A14 road network / Cambridge a 30 minute drive.
  • Viewing strictly by the selling agent Oliver James.
  • Call 01480 458 762 For More Details.

Full Description

A residential development site with planning to hand for the conversion of an existing Grade II Listed building to four premium apartments and two new build mew houses.

A unique opportunity to acquire a development site in a town centre location with Planning Permission and Listed Building Consent granted to convert no.’s 148-150 High Street Huntingdon into four self-contained residential apartments comprising;

Flat No 1: 62 sq.metres - 2 bedroom / 1 bathroom.

Flat No 2: 37 sq.metres - 1 bedroom / 1 bathroom.

Flat No 3: 45 sq.metres - 1 bedroom / 1 bathroom.

Flat No 4: 78 sq.metres - 3 bedroom / 1 bathroom.

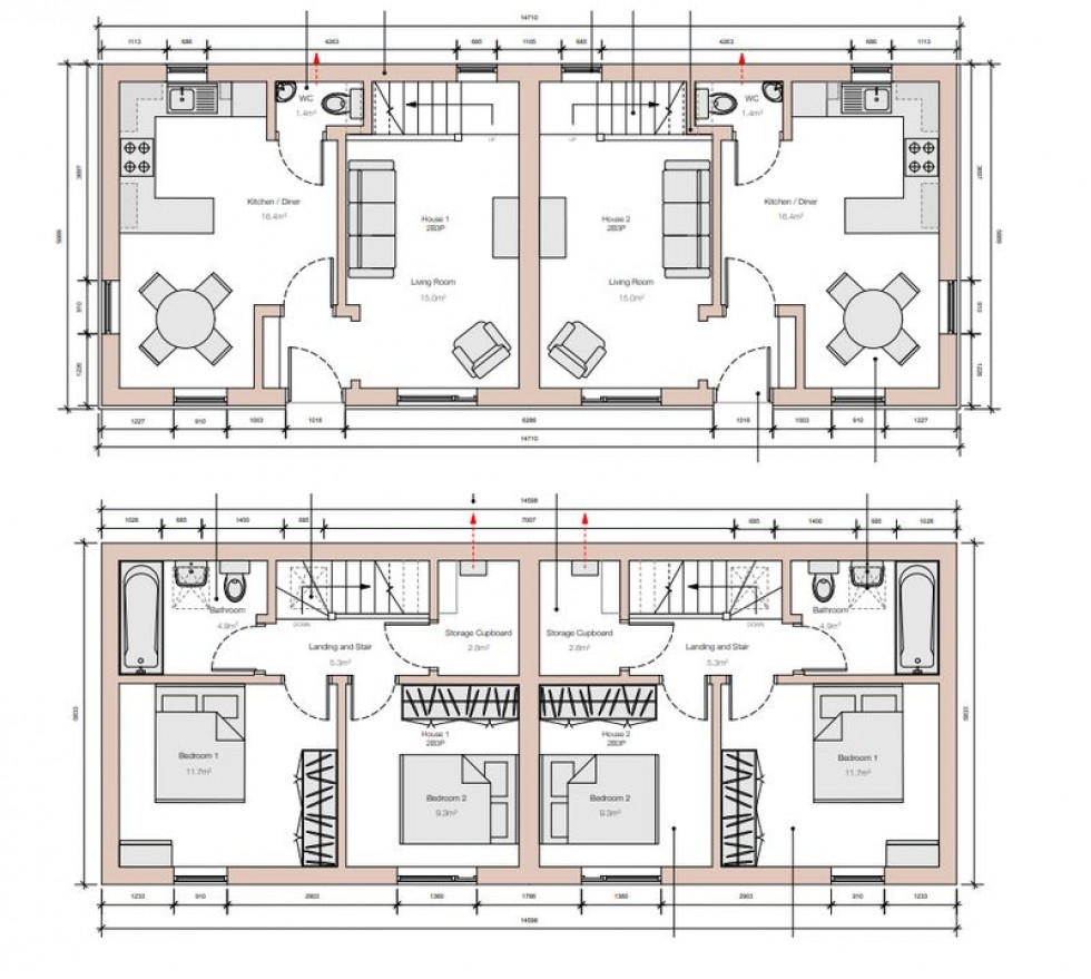
To the north of the existing car park permission has been granted for two new 2-bed dwellings; Old Bridge Mews. The semi-detached buildings will be built on an east-west axis and are 1.5 storeys with dormers constructed within the pitched roof.

House 1: 70 sq.metres - 2 bedroom / 1 bathroom.

House 2: 70 sq.metres - 2 bedroom / 1 bathroom.

There will be 5 car parking spaces serving the development.

The scheme has been thoughtfully designed to preserve the special architectural and historic interest of the heritage asset while securing a sustainable and beneficial long-term use.

The Site

The site is situated in the centre of Huntingdon. It extends to 416 sq/metres / 0.10 acres or thereabouts.

Planning Permission

25/01088/FUL
Change of use of existing commercial premises (Use Class E) to residential (Use Class C3) incorporating conversion into 4No. Self contained apartments. Erection of 2No. Semi detached dwellings to rear

25/01089/LBC
Listed Building Consent for the change of use of existing commercial premises (Use Class E) to residential (Use Class C3) incorporating conversion into 4No. Self contained apartments. Erection of 2No. Semi detached dwellings to rear.

This decision along with preliminary scheme drawings may be viewed at the office of the sole Agent.

Services

It is understood that a connection to the to all mains services are available within the site. However, any prospective Purchaser should make their own enquiries.

Gross Development Value

An indicative idea of the Gross Development Value of the development, once completed, can be provided on request.

Cil

It is understood that a CIL payment of £20865.02 is payable for the two new build dwellings to the rear.

Vat

Please note that VAT is payable on the purchase price.

Location

Situated on the outskirts of Huntingdon Town Centre, the property also has easy easy access onto the A1 road network South and North and A14 East and West with Cambridge just a 30 minute drive away.

Schools catering for all age groups, both private and public can be found within a 20 mile radius. Huntingdon itself benefits from a variety of independent shops, larger supermarkets and retail outlets.

Within walking distance, Huntingdon Train Station provides access to London Kings Cross in under an hour.

Agents Notes

These particulars whilst believed to be correct at time of publishing should be used as a guide only. The measurements taken are approximate and supplied as a general guidance.

Floorplan

Floorplan for High Street, Cambridgeshire, PE29 Floorplan for High Street, Cambridgeshire, PE29 Floorplan for High Street, Cambridgeshire, PE29 Floorplan for High Street, Cambridgeshire, PE29

Book a viewing

Pick a Day


  1. This Week
  2. Next Week
  3. In a Fortnight

Select a Time