1 George Street, Huntingdon
Cambridgeshire, PE29 3AD
An aesthetically pleasing Edwardian home sited on a plot of 0.11 acres with driveway parking, located in a quiet cul-de-sac within a short walk of the town centre. No chain.
Sited in a rarely available, private, cul-de-sac of 10 homes, the property enjoys a pleasant frontage with driveway parking to the side and access to the garden.
The property was constructed in 1908 and indicative of the era enjoys high ceilings throughout providing a light and spacious feeling. Two large reception rooms are great for family time and working from home with a large, extended, conservatory to the rear providing further useful accommodation.
The kitchen has been recently modernised with a smart range of units and stone worktops. There is also a UPVC utility area and downstairs wet room.
On the first floor there are three bedrooms, two doubles and one single, with the principal enjoying a handy WC as well.
The amenities and convenience of the high street are just a short stroll away whilst also providing easy access to the A1 / A14 road network with the train station just a 15 minute walk away.
The property is sold with vacant possession and no onward chain.
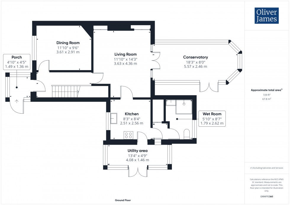
The Gross Internal Floor Area is approximately 1090 sq.ft / 101 sq.metres.
A useful porch to the front with access into the hallway.
Providing access to the ground floor and stairs to the first floor with useful storage underneath.
A good size dining room with exposed wooden flooring and a window to the front.
Providing plenty of space for furniture with an inset coal effect fire and tasteful built-in cupboards to either side.
A spacious UPVC conservatory with a brick base and pitched roof. A radiator provides warmth during the winter months with doors leading into the garden.
A contemporary kitchen fitted with a range of base and wall mounted cupboard units and a stone worktop with a window to the front. Integral appliances include a four ring electric hob, dishwasher, inset sink and oven and grill.
Of UPVC construction with plumbing for a washing machine and space for a tumble dryer with a door to the garden.
Fitted with a wet room floor with inset drainage, low level WC and a wash hand basin with vanity cupboard underneath with an obscure window to the rear.
Serving the first floor with a window to the side.
A double bedroom with a window to the front.
Fitted with a two piece suite comprising close coupled WC and wash hand basin.
A double bedroom with a window to the rear.
A single bedroom with a window to the rear.
Alberta Crescent is a quiet, private, cul-de-sac of 10 homes sited off American Lane a short walk from the Town Centre and amenities.
The property sits on a plot of 0.11 acres with driveway parking to the side. The majority of the garden is to the side, mainly lawned, with some flower and shrub borders.
Situated on the outskirts of Huntingdon Town Centre, the property also has easy easy access onto the A1 road network South and North and A14 East and West with Cambridge just a 30 minute drive away. Schools catering for all age groups, both private and public can be found within a 20 mile radius. Huntingdon itself benefits from a variety of independent shops, larger supermarkets and retail outlets. Within walking distance, Huntingdon Train Station provides access to London Kings Cross in under an hour.
The Property is heated by gas central heating (refitted boiler 2025) and served via mains drainage, water and electricity.
These particulars whilst believed to be correct at time of publishing should be used as a guide only. The measurements taken are approximate and supplied as a general guidance to the dimensions, exact measurements should be taken before any furniture or fixtures are purchased. Please note that Oliver James Property Sales and Lettings has not tested the services or any of the appliances at the property and as such we recommend that any interested parties arrange their own survey prior to completing a purchase. Material Information relating to the property can be viewed by clicking on the brochure tab.
In order to progress a sale, Oliver James will require proof of identity, address and finance. This can be provided by means of passport or photo driving licence along with a current utility bill or Inland Revenue correspondence. This is necessary for each party in joint purchases and is required by Oliver James to satisfy laws on Money Laundering.